Nie ste prihlásený Registrácia Prihlásiť
627 územných plánov
947 článkov
4807 fotografií
30. 11. 2025, meniny má: Ondrej, Andrej
Do konca septembra 2024 máte možnosť pripomienkovať Návrh nového územného plánu Mesta Košice.
Dovoľujeme si Vás pozvať na podujatie, ktoré sa uskutoční v Košiciach a obciach východného Slovenska od 04. do 05. novembra 2022.
Tatry potrebujú Vaše nápady. Ďalší z cyklov projektu Mestské zásahy sa blíži do finále.
V Trsťanoch pri Košiciach spúšťajú predaj rodinných domov s jedinečným konceptom ekologického bývania.
Pomôžte zmeniť Vše mesto. Práve teraz máte možnosť vyjadriť sa k atraktívnosti verejných priestorov, doprave, zeleni v meste a bezpečnosti. Ktoré priestory sa Vám páčia? Kde máte problémy s bicyklovaním? V ktorej oblasti je dostatok kvalitnej zelene? Kde sa necítite bezpečne?
Architekt
Architekt
16592
29. 11. 2013
Celkový počet hlasov: 1030
Považujete proces schvaľovania územnoplánovacej dokumentácie a Zmien a doplnkov za dostatočne pružný?
Stavba se nachází v areálu bývalých Šroubáren v Libčicích nad Vltavou na břehu Vltavy, severně od Prahy, dnes areál společnosti SCREWS & WIRE Libčice a. s. Šroubárna byla založena v roce 1872 a stavba uhelného mlýna pochází přibližně z roku 1900. Původně dvoupodlažní zděná budova byla v roce 1965 dodatečně rozdělena ocelovou konstrukcí na podlaží tři. Od té doby sloužila především pro skladování a zásobování. Budovu zakoupila v roce 2010 firma LUGI s. r. o. společně s Patrikem Hoffmanem. V časovém rozmezí 6/2010 – 12/2011 proběhla rekonstrukce dle návrhu a projektu architektonického ateliéru Patrika Hoffmana. Projekt byl podpořen a spolufinancován dotačním programem OPPI. Budova starého uhelného mlýna byla proměněna na inspirativní pracovní prostředí, bude využívána jako multifunkční objekt – skladové prostory a architektonický ateliér, budou zde probíhat jednání s klienty a obchodními partnery. Součástí ateliéru, situovaného v posledním podlaží, je artotéka – galerie a půjčovna současného umění.


Ke kontextu Šroubárna nás fascinovala již v roce 2006, kdy jsem se snažil přesvědčit kamaráda, aby do areálu investoval. Neudělal to, a tak jsem se alespoň k dílčí investici rozhodl sám. Opuštěný areál, kde do počátku 90. let 20. století pracovalo a žilo více než 1 600 lidí. Dnes je jich zde necelá stovka, a přitom je tu téměř vše. Veškerá infrastruktura. Místo se silnou historií. Železnice, úžasný přírodní kontext – řeka, vzrostlé stromy. Areál je zanedbaný a opuštěný, jen ho znovu probudit k životu.
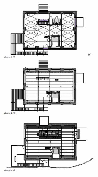
Stav před rekonstrukcí Zděná budova o rozměrech 12,1 × 17,5 m a výšce 11 m, která byla dodatečně výškově rozdělena vloženou nezávislou ocelovou konstrukcí na 3 podlaží. Zastřešena nízkou sedlovou nezateplenou střechou s hřebenovým světlíkem, nesenou ocelovými příhradovými vazníky. Podlahy nulové – tvořily je ocelové plechy s žebry, položené na nosné konstrukci patrové vestavby. Jednotlivá podlaží byla propojena přímým, velmi strmým jednoramenným ocelovým schodištěm. Součástí objektu byl nákladní výtah o nosnosti 1 000 kg, vytápění a osvětlení jednoduchými dělenými ocelovými okny. Vstup do objektu byl přes dvoukřídlá ocelová vrata. Sklad byl vybaven ocelovými regály s dřevěnou výplní.
Realizace Původní dispoziční řešení bylo jednoduché bez dělení a zůstalo v zásadě zachováno. Byly odstraněny dodatečné vestavby a stávající vnitřní schodiště bylo nahrazeno novým, nově orientovaným ocelovým schodištěm.
Hlavní vstup do objektu je nově navržen z čelní JZ fasády přes nové závětří a zádveří, na které je podél JV fasády napojeno nové venkovní odsazené kryté ocelové schodiště, umožňující nezávislý vstup do 3. NP přímo z úrovně terénu. Boční vstup zůstal zachován a bude sloužit pro zásobování. Jednotlivá podlaží jsou propojena stávajícím výtahem a jednoramenným schodištěm.
Na SV fasádu (směrem k řece) byl v úrovni 3. NP, v místě okenního
otvoru, přidán vykonzolovaný ocelový balkon a na SZ fasádě byl realizován
prosklený blok technické místnosti.
Hmoty nově přistavovaných vnějších částí byly realizovány jako systém
vzájemně propojených otevřených ocelových krabic z ocelových plechů tl.
4 mm tak, aby co nejméně narušovaly původní vzhled budovy. Obdobně jsme
pracovali i s vnitřním vybavením. Veškeré zázemí v podobě toalet,
kuchyňky, úklidových komor a propojovacího schodiště mezi jednotlivými
podlažími je ukryto v samostatných dřevěných „krabicích“,
umístěných volně v prostoru tak, abychom nechali maximálně vyniknout
původní konstrukci domu.
Vzhled objektu jsme zásadně neměnili, materiálové provedení i barevnost zůstaly zachovány. Stejně tak byla zachována vložená nosná nezávislá ocelová konstrukce na sloupech. Na tuto konstrukci s nulovými podlahami z pochozích ocelových plátů s výztužnými břity bylo položeno nové podlahové souvrství. Nová podlaha i konstrukce byla dotažena až k obvodovým zdem. Tímto jsme docílili zavětrování celé konstrukce, díky čemuž mohlo být odstraněno zavětrování šikmými táhly v místě nových vstupů do objektu. Celá konstrukce byla očištěna a natřena.
Střešní ocelová vazníková konstrukce byla ponechána ve své podobě, včetně dřevěných krokví a bednění. Na tuto konstrukci byl proveden nový zateplený střešní plášť. Světlík byl po stranách opatřen novými okenními otvory.
Okenní otvory byly z vnitřního líce doplněny novými hliníkovými okny s izolačním dvojsklem a stávající ocelové rámy okenních výplní byly opraveny a zachovány.















Copyright © UzemnePlany.sk, 2007-2014 Všetky práva vyhradené | DB: 80 | T: 0.108471
ISSN 1338-2772 | Aktualizované 2× týždenne